Ra Workshop 3.2 - Sash Profile - Geometrical Parameters

Ra Workshop 3.2 - Sash Profile - Geometrical Parameters

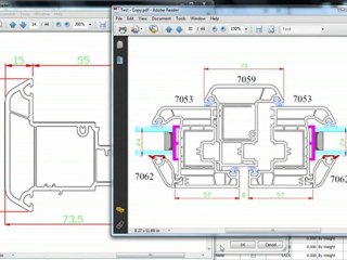
This video explains the geometrical parameter of a sash profile and how to define it in Ra Workshop's database.


User: raworkshop

Views: 1

Uploaded: 2010-08-28

Duration: 03:43