Ra Workshop 3.2-Glazing Bead Profile-Geometrical Parameters

Ra Workshop 3.2-Glazing Bead Profile-Geometrical Parameters

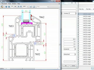
This video explains the geometrical parameter of a glazing bead profile and how to define it in Ra Workshop's database.


User: raworkshop

Views: 28

Uploaded: 2010-08-28

Duration: 03:54